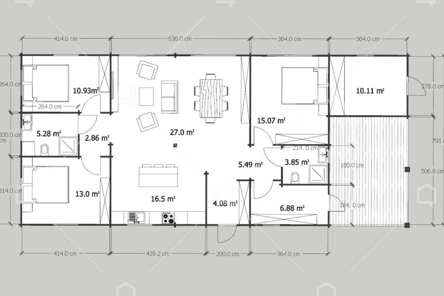
“Rio Grande” è una spaziosa casa di legno in stile scandinavo adatta ad ospitare una famiglia da tre a sei persone. Questa casa a un piano ha forma rettangolare e un tetto a due falde. All’ingresso principale c’è una piccola veranda, che aiuta a bloccare la quantità di polvere e aria fredda proveniente dall‘esterno. Al centro della casa c‘è una grande area aperta che comprende la cucina, la sala da pranzo e il salotto. Dalla parte opposta si trova la zona notte. Da una parte un piccolo corridoio separa l’area comune dalle camere. In mezzo alle camere da letto si trova un bagno. Dall’altra parte ci sono un altro bagno e la camera da letto più grande. La casa ha anche un piccolo ripostiglio che può essere usato per vari scopi. Questa casa di legno è caratterizzata da un’estensione del tetto che crea un ampio spazio per parcheggiare l’auto all’ombra. Sotto il tetto c’è un altro ingresso alla casa che porta al ripostiglio. Le case di legno scandinave che proponiamo possono essere tutte modificate in base alle richieste dei nostri clienti. Contattaci e facci conoscere la tua idea, faremo il necessario per realizzarla! Tutte le visualizzazioni dei progetti presenti sul sito web e gli attributi della casa utilizzati sono solo a scopo commerciale e non possono essere considerati un esempio indiscutibile del progetto.















