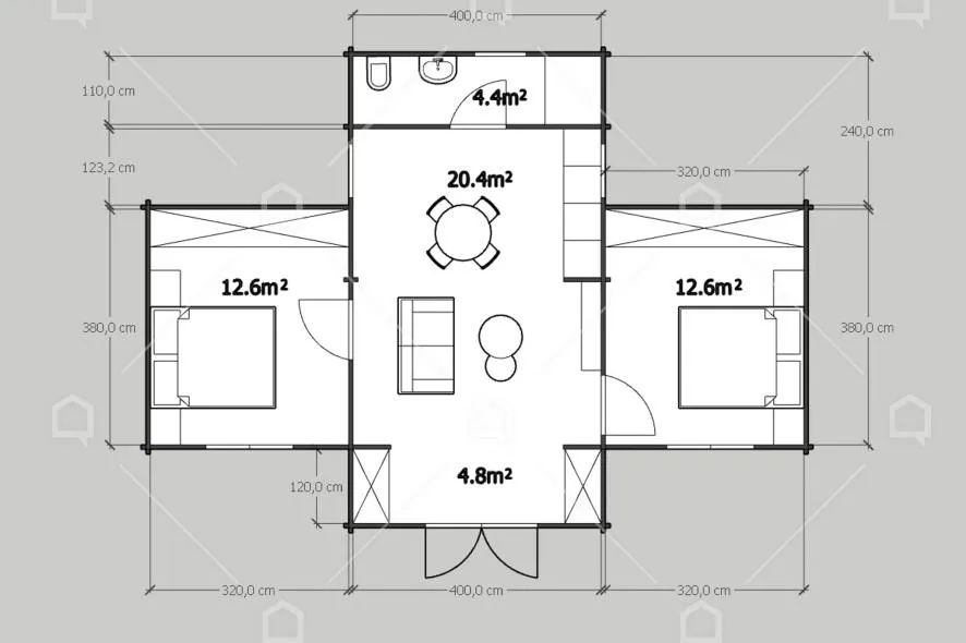
“Nantes” è una casa estiva simmetrica in legno. Anche se il suo esterno sembra piuttosto tradizionale, la casa a forma di croce ha interni insoliti. Ci sono due spaziose camere da letto sui lati opposti della casa. Entrambi sono identici e occupano 12,6 m² ciascuno. La parte centrale della casa è un'area di quasi 30 m² per un soggiorno, cucina, sala da pranzo e un bagno. All'ingresso è possibile progettare un corridoio aperto o chiuso con nicchie per armadi o mensole. Inoltre, una camera da letto può essere utilizzata in modo diverso, ad esempio come ufficio, lavanderia o ripostiglio. La superficie totale abitabile della casa estiva è di oltre 54 m². Una casa estiva di tali dimensioni è adatta per una famiglia di medie dimensioni da tre a quattro persone. Il prezzo di questa casa estiva comprende finestre con doppi vetri in legno incollato con sistema a doppia apertura e una porta in legno incollata con serratura. La casa estiva in legno “Nantes”, come tutte le altre case in legno di nostra produzione, può essere modificata e adattata secondo le aspettative di tutti! Raccontaci come dovrebbe essere la tua casa estiva e noi la progetteremo e la realizzeremo! Tutte le visualizzazioni dei progetti presenti sul sito web e gli attributi della casa utilizzati sono solo a scopo commerciale e non possono essere considerati un esempio indiscutibile del progetto.













