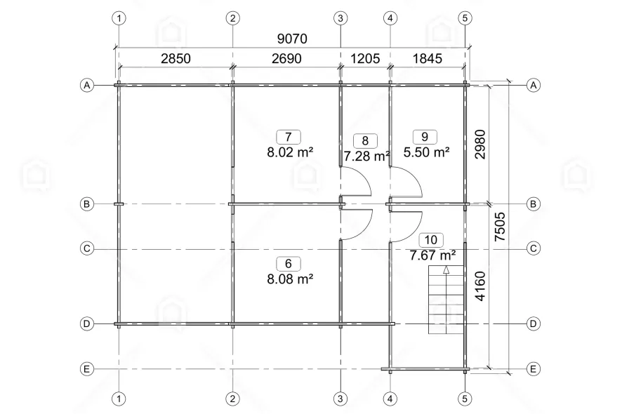
La casa estiva “Nasser” a due piani è unica per il suo design e la sua struttura. Le travi di questa casa estiva in legno non solo adempiono la loro funzione, ma decorano anche l‘esterno tradizionale della costruzione. La casa è ideale per una famiglia di 4 persone e contiene una camera da letto spaziosa al piano terra. Nella comodissima mansarda con finestre è possibile progettare altre due camere. La casa ha una cucina e un salotto, separati da una parete stretta, pensata per appendere una TV. La parete ha la funzione di dare riservatezza senza limitare il movimento al piano terra. Entrambi i piani dispongono di bagni, aspetto molto utile per le famiglie più numerose. La casa estiva ha due ingressi: quello principale è nella veranda, mentre il secondo si trova sulla facciata laterale della casa. Vicino a questa porta ci sono delle scale che conducono al primo piano. La casa estiva ha anche una comoda e spaziosa terrazza di 17,3 m², posta sotto il tetto e dotata di una bassa ringhiera. Questa non solo completa il design esterno della casa, ma dona anche un senso di sicurezza e comfort. Come tutte le case di legno che produciamo, anche questa casa estiva può essere modificata e personalizzata. Raccontaci la tua idea di casa e noi la realizzeremo! Tutte le visualizzazioni dei progetti presenti sul sito web e gli attributi della casa utilizzati sono solo a scopo commerciale e non possono essere considerati un esempio indiscutibile del progetto.















