“ASPEN” è la dimensione ideale per una prima casa di famiglia! Con i suoi 76 m2 è in grado di ospitare perfettamente una famiglia di 2-4 persone. Con un moderno design minimalista e una pratica pianificazione degli spazi, è tutto ciò di cui avete bisogno per la vostra casa dei sogni!
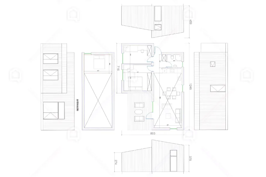
ASPEN è stata progettata tenendo conto delle esigenze di una famiglia. Nella parte principale della casa si trovano un bagno spazioso e una cucina-soggiorno. Sopra il bagno e il corridoio si trova un soppalco dove è possibile riporre gli oggetti o creare un corridoio per gli ospiti. La seconda parte della casa dispone di 2 camere da letto, che potrete adattare alle vostre esigenze: una camera per bambini e una camera da letto principale, o forse una camera da letto e una sala studio?
Il modello ASPEN è interessante anche dal punto di vista del design. La casa è composta da due rettangoli che si incastrano tra loro e che permettono di creare un accogliente angolo interno per la costruzione di una terrazza. La facciata della casa è accattivante anche per le due diverse altezze del tetto, con un soppalco in una parte della casa e soffitti più alti nella parte principale”.
| 124 mm standart | 224 mm standart | 324 mm standart | |
| TETTO | |||
| Pannello costruttivo | 224 mm | 224 mm | 324 mm |
| Lana di roccia | - | 50 mm | 100 mm |
| Sistema di grondaie | Sì | Sì | Sì |
| PARETI ESTERNE | |||
| Finitura della facciata | Pannelli di rivestimento in legno | Pannelli di rivestimento in legno | Pannelli di rivestimento in legno Rivestimento in legno carbonizzato Piastrelle in fibrocemento |
| Pannello costruttivo | 124 mm | 174 mm | 324 mm |
| Lana di roccia | - | 50 mm | - |
| Strati di ventilazione | Sì | Sì | Sì |
| PARETI INTERNE | |||
| Pareti portanti interne | Sì | Sì | Sì |
| Finestre e porte | Classe Timber Premium |
PVC con doppi vetri | PVC triplo vetro |
| OPZIONI AGGIUNTIVE | |||
| Installazione | Sì | Sì | Sì |
| Prezzo senza interni | 746 €/m2 | 910 €/m2 | 1175 €/m2 |
| Prezzo con interni | 968 €/m2 | 1132 €/m2 | 1397 €/m2 |
| Non incluso nel prezzo base: | Le finiture interne comprendono i seguenti componenti: | ||
| Installazione delle fondamenta | Finiture delle pareti - MDF | ||
| Pavimentazione | Finiture del soffitto - MDF | ||
| Installazione di impianti idraulici | Pavimenti - laminato | ||
| Installazione elettrica | Finiture del bagno - piastrelle (pavimento e pareti) | ||
| Sistema di recupero | |||
| Installazione della terrazza | |||
| Divisori interni 70 mm | |||
| ! Se necessario, i clienti possono scegliere una finitura diversa per le pareti. Offriamo le seguenti alternative: - Piastrelle in fibrocemento (principio del diamante o del doppio rivestimento) - nero antracite, grigio chiaro, marrone scuro e rosso classico. - Legno bruciato - diverse opzioni di colore. - Rivestimento - diverse larghezze e opzioni di colore (impregnazione + verniciatura). Il prezzo finale del progetto può variare a seconda della scelta dei materiali di finitura e delle modifiche strutturali. Per conoscere il prezzo esatto del progetto della casa, contattate i nostri responsabili commerciali. |
|||











